START
  • BEISPIELE
  • LEISTUNG
  • KONTAKT
  • LENIGERS WELT
brand-logo START
  • BEISPIELE
  • LEISTUNG
  • KONTAKT
  • LENIGERS WELT
brand-logo START
  • BEISPIELE
  • LEISTUNG
  • KONTAKT
  • LENIGERS WELT
brand-logo START
  • BEISPIELE
  • LEISTUNG
  • KONTAKT
  • LENIGERS WELT

THINK BIG: DIE PLANUNG EINER ARZTPRAXIS IN GROSSEN DIMENSIONEN

THINK BIG: DIE PLANUNG EINER ARZTPRAXIS IN GROSSEN DIMENSIONEN

THINK BIG: DIE PLANUNG EINER ARZTPRAXIS IN GROSSEN DIMENSIONEN

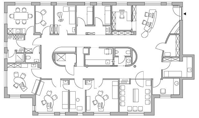
Ein Projekt für die Planung einer Arztpraxis kann auch mal unwahrscheinlich große Dimensionen annehmen. Wie in dieser allgemeinärztlichen Praxis in Beilngries. Sprechzimmer, Wartezimmer, Funktionsräume, Labor, Technik und noch einige weitere spezielle Räume mussten geschaffen werden, um Fachlichem sowie der Dynamik im ärztlichen Betrieb gerecht zu werden.

Optimale Planung für bestes Arbeiten, besten Service und das Wohlgefühl für Ärzte und Patienten

Herausgekommen ist ein Arbeitsbereich, in dem alle Rädchen beim minutiösen Ablauf, inklusive Notarzteinsätze, wie geschmiert ineinandergreifen. Das Design der Praxis, farblich in Apfelgrün gestaltet, greift mit Frische diese Dynamik und Betriebsamkeit auf. Zur „Entschleunigung“ tragen wiederum Bilder an den Wänden mit passenden Blumenmotiven bei.

Komplettplanung vs. Planung im Detail in der Arztpraxis

Die Planung einer Praxis erfordert also nicht nur, öfter in großen Dimensionen zu denken – sondern gleichzeitig (und immer wieder) genauso die Umsetzung der Planung bis ins kleinste Detail. Dabei achte ich auf die komfortable Unterbringung der Patienten in der Arztpraxis genauso wie etwa auf die optimale Situierung des Labors. Und das Tüpfelchen auf dem „i“ der Planung einer Arztpraxisist dann der Blumenschmuck an den Wänden.

Sind Sie neugierig geworden? Dann tauchen Sie doch tiefer ein in die Welt von Leniger Praxisplanung und lesen Sie weiter, zum Beispiel zum Thema Innenarchitektur Arztpraxis

Impressum

Datenschutzerklärung

copyright Bernhard Leniger-Salley 2021